ID CP2779008

Regim mic de înălțime | Zona Theodor Pallady | Direct Dezvoltator

ID CP2779008

111,451 € + 21% TVA

Apartament cu 3 camere de vânzare
Theodor Pallady, Bucuresti
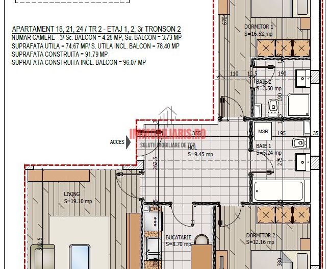
78.4 mp
2025

Locuință situată într-un bloc nou, cu regim mic de înălțime, în Theodor Pallady. Finisaje de calitate, aproape de centre comerciale și transport în comun STB și metrou. Fără comision, achiziție directă de la dezvoltator!

Va prezentam o noua oportunitate exceptionala de a achizitiona apartamente rafinate si spatioase, construite de un dezvoltator cu o vasta experienta in Sectorul 3. Aceste locuinte sunt parte a unui ansamblu rezidential cu peste 10 blocuri finalizate.

Amplasate intr-o zona pitoreasca, departe de agitatia orasului, aceste apartamente ofera un cadru linistit, cu acces rapid catre mijloacele de transport in comun si spre centrul orasului. Proprietatile sunt vandute complet finisate si conectate la toate utilitatile publice: apa, gaz, canalizare si energie electrica. In plus, includ finisaje la alegere, pardoseala din parchet, usi interioare elegante, gresie si faianta de calitate superioara, centrala proprie in condensare si bai complet utilate.

Facilitatile ansamblului includ acces privat asigurat printr-o poarta electrica cu telecomanda pentru confort si siguranta sporita. Aceasta zona rezidentiala exclusivista se afla la doar cateva minute distanta de mijloacele de transport in comun catre metroul Nicolae Teclu si este in proximitatea unor puncte de interes esentiale din partea de est a orasului, cum ar fi IKEA, Auchan, Lidl, Metro, Decathlon, JYSK, Mega Image, Dedeman, Leroy Merlin, Jumbo. Accesul rapid catre centrul orasului si autostrada A2 Bucuresti - Constanta completeaza avantajele acestei locatii de exceptie.

Poze cu titlu informativ!

Direct Dezvoltator - Comision 0%

Pretul afisat nu include tva si este disponibil pentru plata in avans a 80% din valoarea imobilului la momentul semnarii antecontractului.

Se accepta credit ipotecar!

Pentru mai multe informatii si vizionari, va rog nu ezitati sa ne contactati!

Parcul Teilor - Ozana - Nicolae Grigorescu - 1 Decembrie 1918 - Nicolae Teclu - Republica - Pantelimon - Metrou - Salajan - Titan - Noul Titan - Trapezului - Theodor Pallady - Liviu Rebreanu - Balta Alba - Parcul I.O.R. - Autostrada - Centura - Centre Comerciale - Mijloace de Transport - Prima Casa - Noua Casa - Credit Ipotecar - Ocazie - Oferta - Discount - Zona Verde - Constructie noua

Citește mai mult

  • Tip apartament
    Apartament
  • Compartimentare
    Decomandat
  • Număr camere
    3
  • Dormitoare
    3
  • Număr bucătării
    1
  • Număr băi
    2
  • Etaj
    1
  • Suprafață utilă
    78.4 mp
  • Suprafață construită
    91.73 mp
  • Orientare
    Sud-Est
  • Confort
    1
  • Stare interior
    Nou
  • Număr balcoane
    1
  • Număr locuri parcare
    1
  • Imobil
    Bloc de apart.
  • Stadiu construcție
    În construcție
  • An construcție
    2025
  • Construcție nouă
    Da
  • De la dezvoltator
    Da
  • Tip construcție
    Cadre
  • Număr etaje clădire
    3

Facilități

Apă
Apometre
Canalizare
CATV
Centrală imobil
Contor electric
Contor gaz
Curent
Curte comună
Faianță
Ferestre PVC
Gaz
Geamuri termopan
Gresie
Iluminat stradal
Interfon
Internet
Izolație exterioară
Loc de joacă copii
Mijloace de transport în comun
Parcare deschisă
Parchet laminat
Străzi asfaltate
Telefon
Ușă intrare metal
Uși interior celulare
Vopsea lavabilă
ANDREI UTA - immobiliaris.ro
ANDREI UTA
Manager

0725668883


Solicită chiar acum o vizionare
Telefon
Sună acum Solicită vizionare
Necesare:

Site-ul nu poate funcționa corect fără aceste cookie-uri. Vezi cookie-urile

Statistică:

Strângem statistici anonime despre voi, vizitatorii unici, pentru a vă îmbunătăți experiența dumneavoastră. Vezi cookie-urile

Marketing:

Pentru a ne promova mai eficient serviciile noastre, folosim cookies pentru a vă identifica și a vă oferi proprietăți și servicii personalizate. Vezi cookie-urile

Acest site folosește cookies, află detalii. Alege ce tipuri de cookies dorești să permitem: